REZERVOVANÉ
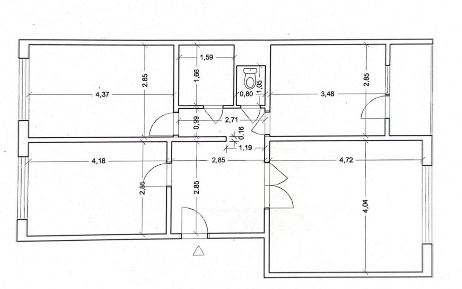
Ponúkame na predaj priestranný a svetlý 3-izbový byt v Banskej Bystrici o výmere 72 m², ktorý predstavuje ideálne bývanie pre rodinu s deťmi. Nachádza sa v obľúbenej a pokojnej lokalite Radvaň – Bernolákova ulica, známej výbornou občianskou vybavenosťou a množstvom zelene.
Dispozícia bytu ponúka dostatočne priestranné izby, ktoré sa dajú pohodlne zariadiť ako detské izby, spálňa aj spoločný rodinný priestor. K bytu patrí balkón o výmere 2 m², ideálny na oddych, a pivnica (1,7 m²) poskytujúca praktický úložný priestor.
Byt je po čiastočnej rekonštrukcii:
- nové podlahy
- nové stierky na stenách
- plastové okná
- nové vchodové dvere
Kúpeľňa a samostatné WC sú v pôvodnom, avšak plne funkčnom stave, čo dáva novým majiteľom možnosť prispôsobiť si ich podľa potrieb rodiny.
![]()
Výhody:
- bezpečné a príjemné prostredie
- bytový dom je zateplený a udržiavaný
- detské ihriská priamo v okolí
- školy a škôlky v pešej dostupnosti
- pokojné vnútrobloky plné zelene
- bezpečné prostredie vhodné pre deti
V tesnej blízkosti sa nachádzajú obchody, pošta, zdravotné stredisko a iné služby.
Lokalita ponúka ideálne podmienky pre pokojný a komfortný rodinný život, bez potreby zdĺhavého dochádzania, a zároveň poskytuje množstvo príležitostí na prechádzky, relax a oddych v blízkosti prírody.
✨
Byt je okamžite obývateľný a predáva sa čiastočne zariadený, čo uľahčuje rýchle nasťahovanie.
Táto nehnuteľnosť je ideálnou voľbou pre rodiny, ktoré hľadajú priestor, bezpečné prostredie a kompletnú občiansku vybavenosť, zároveň však predstavuje aj výbornú investičnú príležitosť vďaka vyhľadávanej lokalite, dispozícii a vysokému dopytu po prenájme v tejto časti mesta.
Cena: 175.000 EUR
Pre viac informácii nás neváhajte kontaktovať alebo si dohodnite obhliadku ešte dnes.
Mgr. Janka Baťková Oravcová, 0918 695 305, janka.batkova@targetreal.sk







Ponúkam komplexný servis predaja, kúpy a prenájmu nehnuteľností až po odovzdanie kľúčov od vašej novej "Srdcovky".