Hľadáte ideálne bývanie, ktoré spája priestor, komfort a výbornú lokalitu? Ponúkame vám výnimočnú príležitosť stať sa majiteľom tohto priestranného 3-izbového bytu v čoraz viac vyhľadávanej časti mesta Martin, v obľúbenej Priekope.
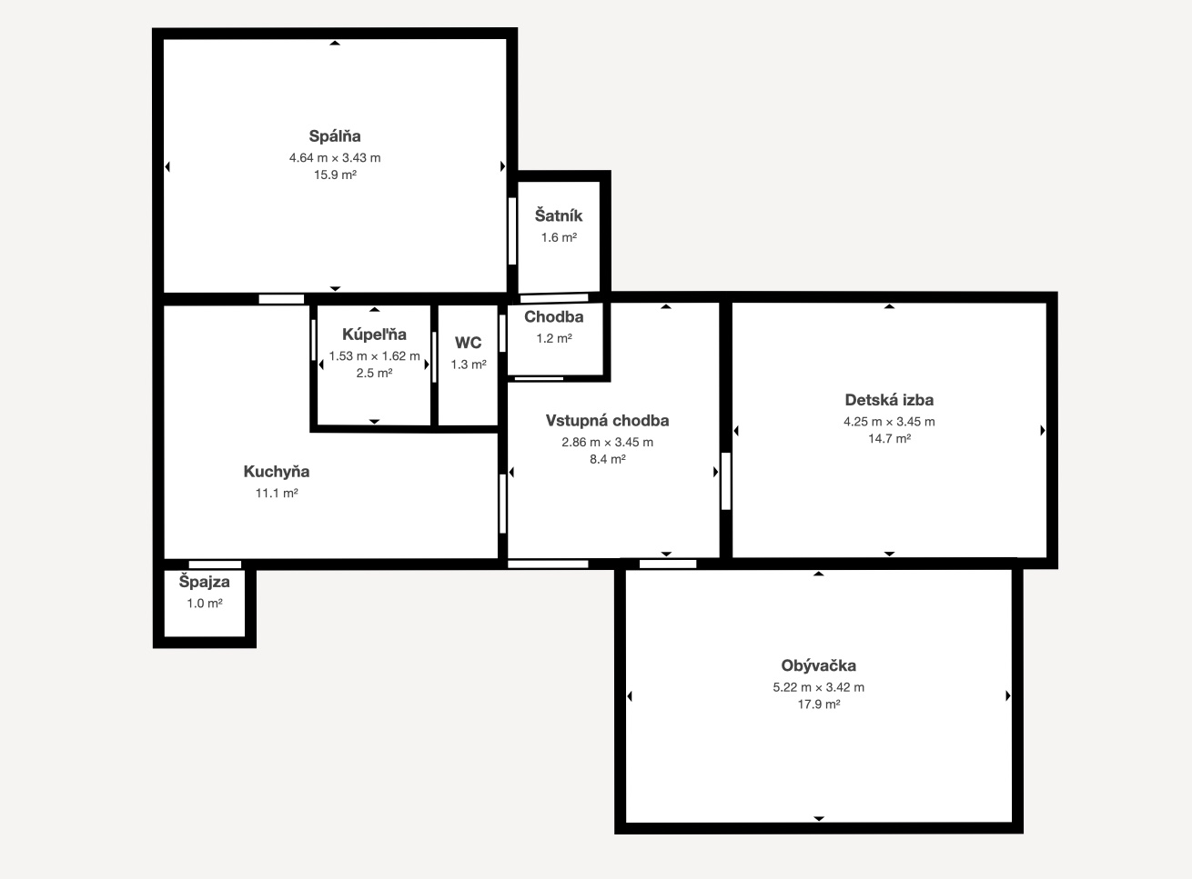
Tento byt s výmerou 80 m², situovaný na 4. poschodí zo 6 s výťahom, ponúka orientáciu sever- juh , zabezpečujúcu dostatok prirodzeného svetla. Dispozične je riešený pre maximálne pohodlie: pozostáva z troch priestranných izieb, praktickej rohovej kuchyne so špajzou, chodby s úložnými výklenkami, kúpeľne, samostatného WC, balkóna orientovaného na juh a pivnice v suteréne bytového domu. Byt má bezpečnostné dvere značky Sherlock.
V byte prebehla čiastočná rekonštrukcia, ktorá zahŕňala nové steny a podlahy, čím sa vytvoril svieži a moderný základ. Hoci kúpeľňa a WC si zachovali pôvodné jadro, sú plne funkčné a dobre udržiavané.
Charakteristickým znakom tohto bytu sú nielen dostatočne priestranné izby, ale aj nadštandardné úložné priestory. Práve tie ponúkajú obrovský potenciál pre moderné dispozičné zmeny. Predstavte si možnosť vytvorenia samostatného šatníka pre spálňu alebo rozsiahlej šatníkovej skrine v priestrannej chodbe. Tento byt vám dáva voľnú ruku pre realizáciu vašich predstáv o dokonalom domove, kde neexistujú priestorové obmedzenia, len komfort a moderná dispozícia.
Rohová kuchyňa s dostatkom miesta na veľký jedálenský stôl sa stane srdcom vášho domova. Z obývacej izby je prístup na južne orientovaný balkón, ideálny na relax s knihou alebo rannú kávu.
Lokalita Priekopy je známa svojou plnohodnotnou a kvalitnou občianskou vybavenosťou. V blízkom okolí nájdete všetko, čo potrebujete pre pohodlný život: školy, škôlky, prevádzky služieb, zdravotné strediská, supermarkety a rôzne obchody – všetko na dosah ruky.
Bytový dom je zateplený, čo prispieva k nižším nákladom na vykurovanie. Každý vchod poskytuje dostatok spoločných priestorov, ktoré sú prakticky využiteľné napríklad na uskladnenie bicyklov alebo kočíkov.
Nová cena: 130.000 EUR
Nenechajte si ujsť túto jedinečnú príležitosť! Tento byt predstavuje ideálnu kombináciu lokality, priestoru a potenciálu, ktorý môžete pretvoriť na váš vysnívaný domov.
Zaujal vás tento byt? Kontaktujte nás pre viac informácií alebo si dohodnite obhliadku ešte dnes!

Ponúkam komplexný servis predaja, kúpy a prenájmu nehnuteľností až po odovzdanie kľúčov od vašej novej "Srdcovky".